046-204-8253

営業時間:
10:00~19:00
定休日:
毎週水曜日※大和店は毎週火曜・水曜日

いえらび > いえらび 大和店のスタッフブログ記事一覧 > 家賃と管理費が2カ月無料!アクセス高円寺アジールコート Fタイプ~Iタイプ

家賃と管理費が2カ月無料!アクセス高円寺アジールコート Fタイプ~Iタイプ

≪ 前へ|家賃・管理費が2カ月無料!☆アクサス高円寺アジールコート A~Dタイプ   記事一覧   大和市 賃貸物件探し方のススメ!!|次へ ≫

家賃と管理費が2カ月無料!アクセス高円寺アジールコート Fタイプ~Iタイプ

カテゴリ:仲介事業部
家賃・管理費が2カ月無料!
絶対お得なハイグレードMS☆
【アクサス高円寺アジールコート】
AXAS高円寺アジールコート
完全攻略全室まとめナビ
人気のペット可物件です☆彡


【12月1日入居想定初期費用】
最安賃料88,000円~最高賃料112,000円の部屋がありますが・・・
敷金ゼロ・礼金ゼロ・仲介手数料ゼロ・フリーレント2カ月
特別キャンペーン中の物件!!

初期費用は64,508円~75,535円!!!

しかも賃料・管理費は2カ月支払った計算ですので・・・

次回家賃の支払いは1月末に
2月分を支払えばOK!!
実質初期費用無料
前家賃無料ですね・・

◆お問い合わせは◆
046-204-8254
いえらび大和店へ

↓物件詳細は↓

ハイセキュリティー!ネット無料!人気の条件は網羅しました☆彡

人気のゆったり系!1LDKもある 南西部屋・全5タイプの紹介



管理費全室15,000円
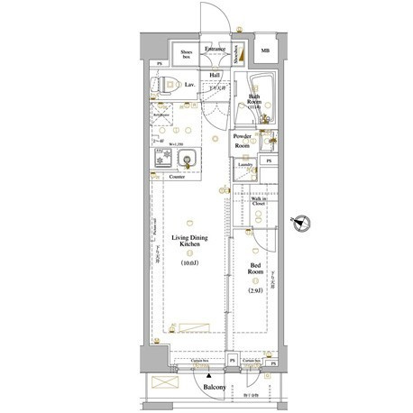
↓タイプF 25.81㎡ 賃料:88,000円~92,000円 ※4階まで↓
2F:90,000円 1階上がる毎に賃料1,000円UP


室内イメージ



お洒落な室内で差がつきます!!




スタイリッシュなキッチンは料理好きにはたまりません☆彡


ゆったり清潔なバスルーム☆彡



新築だからトイレもピカピカ!!



お洒落したくなる素敵な洗面台!!



たっぷり収納!!



シューズボックスもあります☆彡

↓タイプG 25.81㎡ 賃料:88,000円~92,000円 ※4階まで↓
2F:90,000円 1階上がる毎に賃料1,000円UP




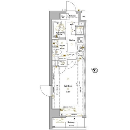
↓タイプH 32.04 賃料:112,000円 ※現在1Fのみ 5階まで↓
人気の1LDKラスト1部屋





↓タイプI1 30.26㎡ 賃料:106,000円~112,000円 ※6階まで↓
2F:108,000円 1階上がる毎に賃料1,000円UP 最上階のみ112,000円




↓タイプI2 30.26㎡ 賃料:106,000円~112,000円 ※6階まで↓
2F:108,000円 1階上がる毎に賃料1,000円UP 最上階のみ112,000円

間取り・内装衣I1の反転

仲介手数料不要・敷金不要・礼金不要・家賃管理費2カ月無料(2カ月フリーレント)・初期費用実質0円・ネット無料・ペット可(ペット飼育時敷金1カ月)・LL-45等級フローリング採用・外観タイル張り・BS対応(別途費用)・CS対応(別途費用)・ワイドスイッチ仕様・耐震対策ラッチ吊戸棚・ピクチャーレール・2重サッシ・デザイン洗面台・独立洗面台・サーモスタット水栓・24時間換気・宅配BOX・防犯カメラ・セコム・オートロック・カラーモニターフォン・防犯キー採用


■アクシス高円寺アジールコートの設備
24時間セキュリティ・メールボックス・TVモニター付きオートロック・防犯カメラ・宅配ロッカー・敷地内ゴミ置き場・ディンプルキー・カウンターキッチン・ピクチャーレール・浴室換気乾燥機・人感センサー・2口ガスシステムキッチン・マルチメディアコンセント・追炊き機能

■アクシス高円寺アジールコートの周辺環境
ローソンストア100 中野大和町二丁目店2分
セブン-イレブン中野大和4丁目店2分
ミニストップ 中野若宮店10分

・学校
大和東保育園6分
啓明小学校6分
第四中学校6分

・その他
早稲田通り6分
環七通り8分

◆設備紹介・条件◆
仲介手数料無料・契約金カード決済可・初期費用分割可・保証会社利用可

◆立地・環境◆
2駅利用可/・2沿線利用可

◆構造・工法・仕様◆
外壁タイル張り・エレベーター・宅配ボックス・駐車・駐輪・駐輪場

提  供:株式会社ドリームアーク いえらび 大和本店
免許番号:神奈川県知事 (1) 第29687号

神奈川県大和市大和南2丁目1-1 大和中央ビル1階
TEL:046-204-8253
FAX:046-204-8254
≪ 前へ|家賃・管理費が2カ月無料!☆アクサス高円寺アジールコート A~Dタイプ   記事一覧   大和市 賃貸物件探し方のススメ!!|次へ ≫

最新記事

おすすめ記事

カテゴリ

>>全ての記事を見る

XMLRSS2.0

  • 掲載物件数
    ロード中
    公開物件数
    ロード中
    本日の更新件数
    ロード中
  • スタッフ紹介
  • 周辺施設検索
  • お客様の声
  • お問い合わせ
  • 更新物件情報

    2025-11-09
    エステートピア黒沢2(エステートピアクロサワツー)の情報を更新しました。
    2025-11-09
    カインドネス町田南大谷の情報を更新しました。
    2025-11-09
    JS2(ジェイエスツー)の情報を更新しました。
    2025-11-09
    AXIS中町(アクシスナカマチ)の情報を更新しました。
    2025-11-09
    SerioPatata(セリオパタタ)の情報を更新しました。
    2025-11-09
    アザレ町田の情報を更新しました。
    2025-11-09
    グランフェリオ相模原の情報を更新しました。
    2025-11-09
    チャイルドシティAの情報を更新しました。
    2025-11-09
    ハッピーハイツ相模台(ハッピーハイツサガミダイ)の情報を更新しました。
    2025-11-09
    アザレ町田(アザレマチダ)の情報を更新しました。
  • 内部ブログ
  • 会社概要

    会社概要
    いえらび 大和店
    • 〒242-0016
    • 神奈川県大和市大和南2丁目1-1
      大和中央ビル 102号室
    • TEL/046-204-8253
    • FAX/046-204-8254
    • 国土交通大臣 (2) 第9444号
  • アクセスマップ
  • 工事に関して
  • 賃貸管理
  • QRコード
  • 店舗紹介
  • LIFULL HOMES 優良店認定
  • 不動産総合ポータルサイトいえらぶ参加中

山崎 良輔 最新記事



山崎 良輔

お客様が当社でご契約して良かったと感じていただけるよう明るく楽しいお部屋探しを心掛けます!ご納得頂けるお部屋が見つかるまでお探しいたします!可能な限り入居条件も交渉致します。大和市のお部屋探しはドリームアークいえらび大和店の山崎にご相談ください!!

スタッフ情報を見る

 おすすめ物件


エステートピア黒沢2(エステートピアクロサワツー)

エステートピア黒沢2(エステートピアクロサワツー)の画像

賃料
5万円
種別
アパート
住所
東京都八王子市館町1465
交通
狭間駅
徒歩13分

カインドネス町田南大谷

カインドネス町田南大谷の画像

賃料
5.7万円
種別
アパート
住所
東京都町田市南大谷1627-7
交通
町田駅
徒歩18分

JS2(ジェイエスツー)

JS2(ジェイエスツー)の画像

賃料
7.65万円
種別
アパート
住所
神奈川県相模原市南区古淵4丁目7-8
交通
古淵駅
徒歩3分

AXIS中町(アクシスナカマチ)

AXIS中町(アクシスナカマチ)の画像

賃料
7.65万円
種別
アパート
住所
東京都町田市中町3丁目4-10
交通
町田駅
徒歩9分

トップへ戻る